Avez vous déjà eu l'idée de faire construire votre maison à Royan dans le 17 ? Si oui avez vous déjà une trame des plans ? Savez vous déjà si elle sera de plain pied ou serait-ce plutôt une maison à étage et préau ? Tant de questions se bousculent dans votre tête, quelles soient techniques, administratives ou financières. Alors le mieux reste de se tourner vers des professionnels.

Art Construction, c'est un constructeur présent sur le département de la Charente-Maritime depuis plus de 15 ans. Autant vous dire que leur métier il le maîtrise. En plus de leur savoir-faire, c'est aussi la région qu'ils connaissent et les artisans avec qui il faut, et ceux avec qui il ne faut pas travailler. S'entourer de tels professionnels, c'est l'assurance de finaliser son projet sans risque grâce aux nombreuses garanties qu'ils offrent à leurs clients.

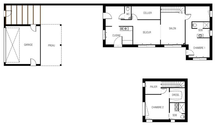
"S'appliquer dans l'art de construire votre maison" c'est la devise d'Art Construction. Mais avant d'en être à l'étape de la construction de votre futur nid douillet, il faut commencer par le commencement. Leur équipe vous attend dans leur agence située au 4 rue de Guinielle à Royan (17) pour parler de votre projet de maison à étage et préau. Pour vous donner une idée de ce qui est réalisable, ils mettent à votre disposition des exemples parmi leurs réalisations. Il est donc possible de partir de là. Mais si vos idées sont déjà arrêtées, ils pourront s'adapter sans souci.

Découvrez les modèles de maisons à étage, comme MORPHEE ou POSEIDON. Peut-être aurez vous un coup de coeur avec ces références, qui restent personnalisables. En faisant construire à Royan, vous pourrez profiter de tous les merveilleux endroits de la Charente-Maritime (17). Passez du rêve à la réalité en toute quiétude avec Art Construction. N'attendez plus pour les appeler au 05 46 22 75 38 pour prendre rendez-vous.
