Essayer, c’est l’adopter. Cet adage convient parfaitement à notre île.
On vient y passer quelques jours de vacances et puis on éprouve un sentiment confus lorsqu’il faut la quitter. On ne le sait pas encore mais on le devine. On vient d’en tomber éperdument amoureux.
Un diagnostic qui n’est pas sans conséquence. Bien souvent, il dessine les contours d’un futur projet de résidence secondaire à l’île d’Oléron.
L’entreprise Art Construction peut en témoigner. C’est un marché très actif.

Comment ne pas tomber sous le charme de celle que nous surnommons affectueusement l’île lumineuse. Les plages de sable fin se succèdent, les villages sont ravissants, la nature a gardé son caractère sauvage.
Cette Dolce Vita à la française a tout, vraiment tout pour séduire.
Si vous éprouvez l’envie de vous en rapprocher, qu’un projet de résidence secondaire sur l’île d’Oléron commence à germer dans votre esprit, alors il vous faudra vous entourer des meilleurs.

Pour réaliser votre rêve et avoir un pied à terre sur la Lumineuse, rapprochez-vous de l’entreprise Art Construction. Elle est implantée sur le secteur depuis de nombreuses années et, croyez-nous, son excellente réputation n’est pas usurpée. Ils prendront le temps de vous écouter et de peaufiner les moindres détails de ce projet de résidence secondaire sur l’ile d’Oléron qui vous tient à cœur. C’est essentiel de pouvoir compter sur un constructeur sérieux. Un conducteur de travaux s’assurera par exemple du suivi du chantier et vous en tiendra régulièrement informé. C’est capital dès lors que votre résidence principale se situe loin de l’île d’Oléron.

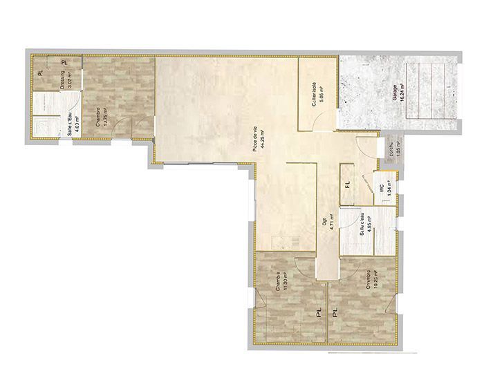
Si vous êtes prêts à vous lancer dans ce projet de résidence secondaire, vous pouvez contacter l’entreprise Art Construction. Vous conviendrez alors d’un premier rendez-vous avec un conseiller pour mener une étude minutieuse de vos besoins. Vous trouverez également sur leur site Internet www.artconstruction.fr de nombreux exemples de réalisations.
Cela vous donnera assurément quelques idées… Vous y trouverez également les coordonnées des deux agences (Saintes au 05 46 96 92 38 et Royan au 05 46 22 75 38).
