Tesson est une petite commune de Charente Maritime où il fait bon vivre. Quoi de mieux qu’une ville tranquille pour y vivre avec sa petite famille. Vous ne voulez surtout pas vous retrouver dans une grande ville. Vous ce que vous aimez c’est le calme et les grands espaces. La ville de Tesson est parfaite. Vous vous trouverez à proximité des commerces utiles comme pharmacie, la poste ou encore un petit supermarché, tout en étant au coeur de la nature. C’est l’endroit idéal pour la construction de votre maison sur mesure.

Pour commencer, la première étape est de trouver votre terrain. Pour ça, vous pourrez compter sur les équipes de Art Construction. Leur savoir-faire et leur connaissance du marché leur permettra de vous aider dans cette quête. Vous n’aurez qu’à donner vos envies et vos besoins et les équipes se chargeront du reste. Vous pourrez leur faire totalement confiance. Pour commencer, l’entreprise vous offre de nombreuses garanties. Aussi, en vous rendant sur leur site Internet, vous pourrez découvrir leurs précédentes réalisations.

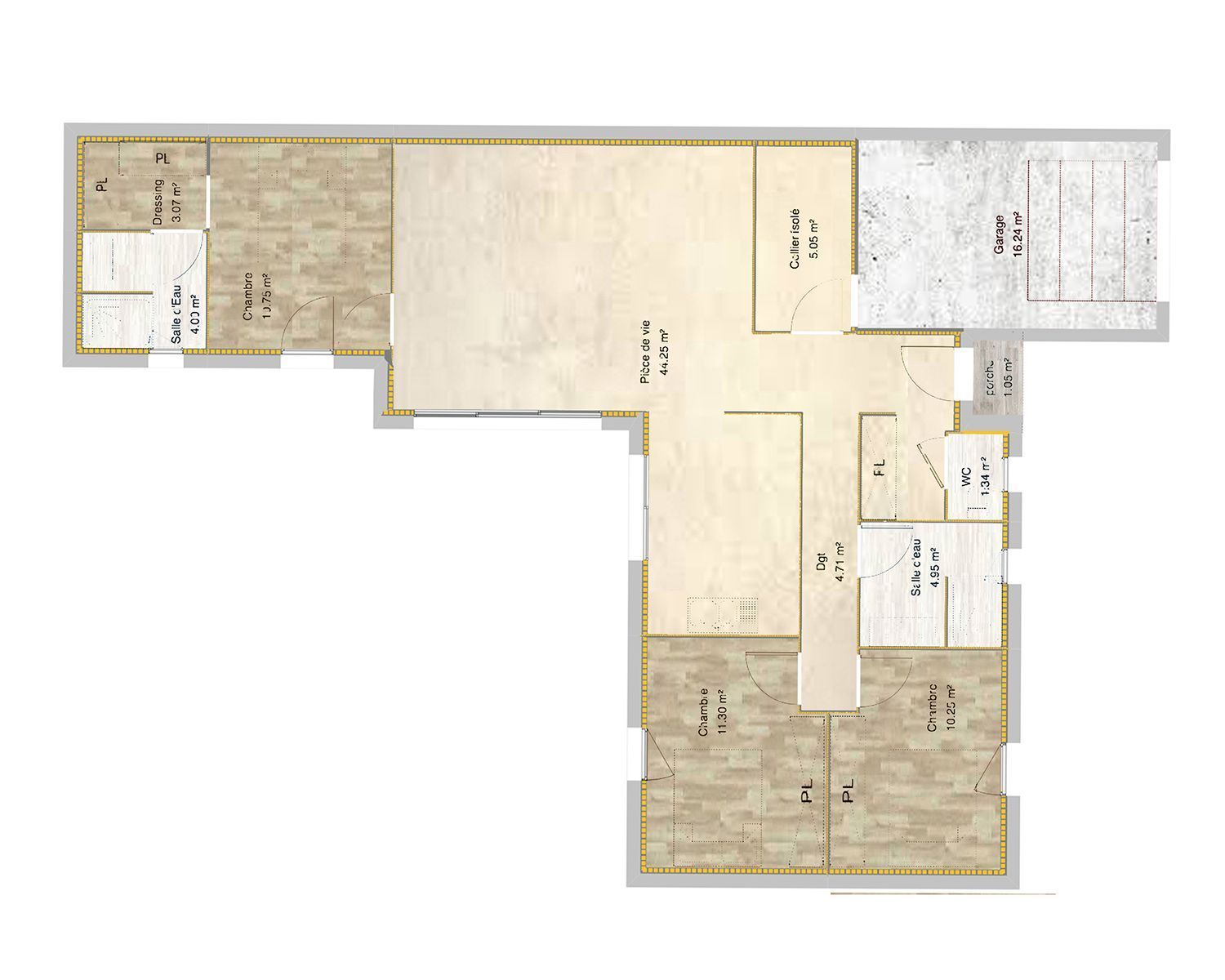
Le temps de trouver votre terrain, vous aurez le temps de réfléchir à votre projet. Vous avez déjà pleins d’idées en tête. Vous avez hâte de les exposer au constructeur de maison sur mesure à Tesson. Les agents pourront vous conseiller et vous guider vers des solutions adaptées à vos besoins.

Alors pour la construction de votre maison sur mesure à Tesson, faites appel au constructeur Art Construction. Vous pourrez faire pleinement confiance aux équipes. Elles feront appel aux meilleurs artisans de la région pour que votre projet soit une réussite. Vous pouvez dès à présent téléphoner au 05 46 96 92 38 ou bien rendez vous dans l’une de leur agence à Royan ou Saintes.
