Voilà bientôt 1 an que nous avons aménagé dans notre nid douillet. Oui, il y a plus d’un an, nous avons pris la décision de quitter notre location pour faire construire. Notre décision était mûrement réfléchie et nous y pensions depuis bien longtemps déjà. Nous avons fait appel à un constructeur de maisons sur mesure présent sur la Charente Maritime dont nous avions déjà entendu parler.

Évidemment nous ne voulions pas confier notre projet au premier venu. Nous avons fait quelques recherches sur l’entreprise de construction. Nous en avons discuté avec des amis qui avaient fait appel à eux. Nous nous sommes rendus sur leur site Internet afin de découvrir leurs réalisations. Résultat, tout ce que nous avons vu nous a beaucoup plu. Nos amis nous ont garanti que nous pouvions leur faire totalement confiance. Ni une ni deux, nous avons alors pris rendez-vous avec un membre de l’équipe d’Art Construction.

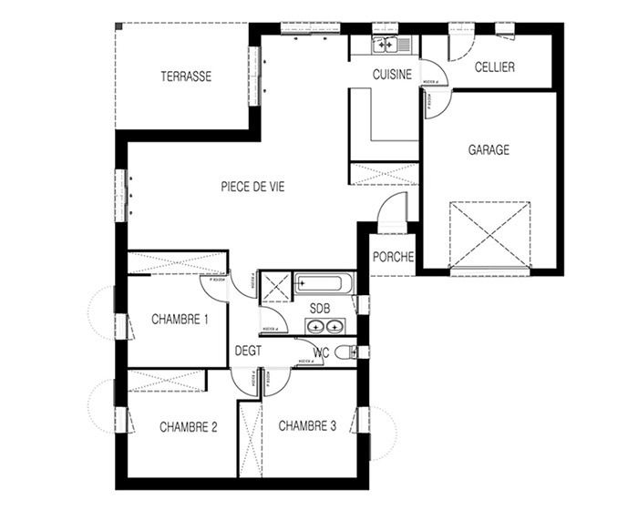
Lors du rendez-vous avec le constructeur de maison sur-mesure en Charente Maritime, nous avons pu discuter de nos envies et de nos besoins. Les membres de l’équipe étaient force de proposition. Connaissant parfaitement leur métier ils nous ont guidés vers des choix plus adaptés à nos besoins. Aujourd’hui nous en sommes ravis. Notre maison a été construite sur mesure, nous avons tout choisi du début à la fin. Les mois nous ont paru longs avant d’avoir nos clés tellement nous étions impatients. Toutefois, nous avons été parfaitement informés et partie prenante tout au long de la construction. Nous pouvions nous rendre sur le chantier dès que nous le souhaitions.
Le constructeur de maisons sur mesure en Charente Maritime dispose d’une équipe de confiance et professionnelle. Vous pourrez profiter de nombreuses garanties.
Pour en savoir plus, vous pouvez prendre rendez-vous en téléphonant au 05 46 96 92 38.
N’attendez plus pour enfin faire construire votre maison sur mesure !