
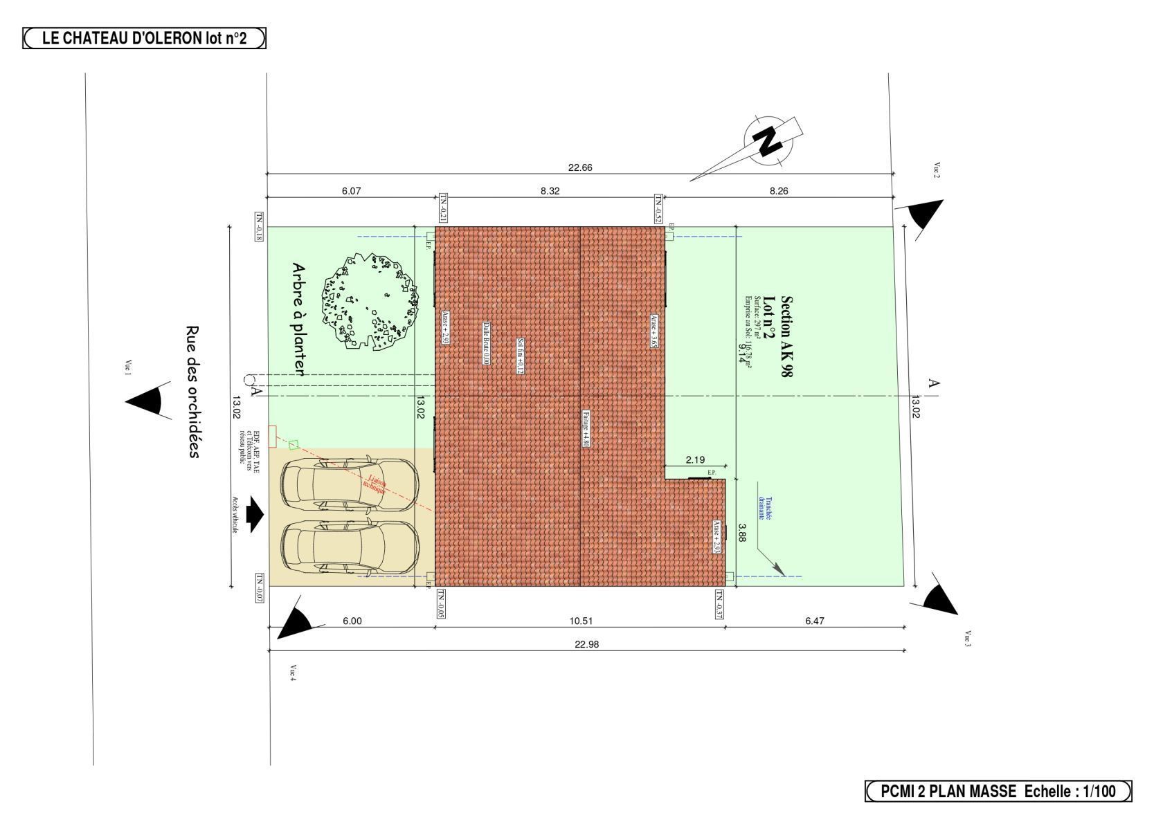
Achetez votre maison neuve 3 chambres 82 m2 avec garage 16 m2 sur un terrain de 297 m2 au CHATEAU-D'OLERON (rue des Orchidées).
Personnalisez les finitions (carrelages et faïences) de la maison et installez-vous dans cette maison dès maintenant !
Idéalement placé entre le centre ville du Château d'Oléron et la plage de Grand-Village. Située dans une rue en impasse quartier calme.
Prix : 350 000 € (frais de notaire réduit).
Contactez notre conseiller au 05 46 96 92 38 !






